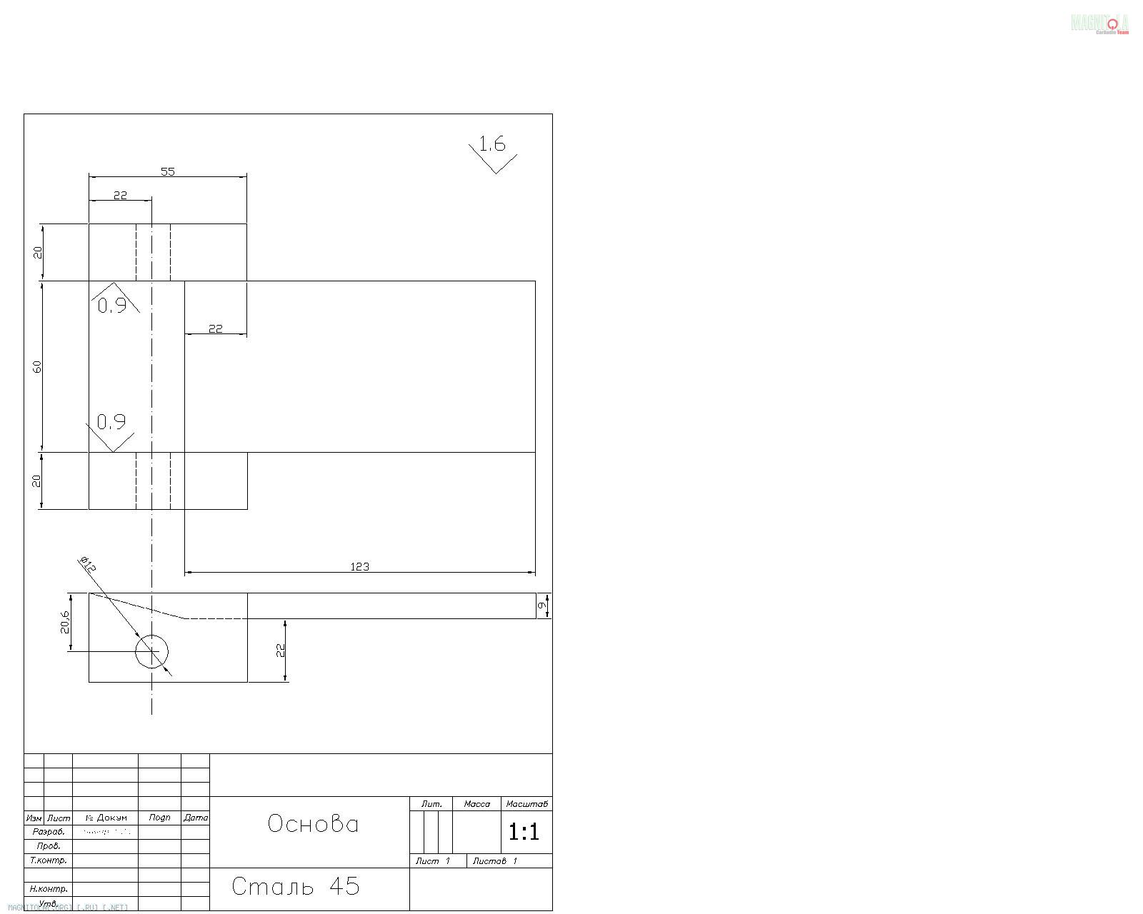
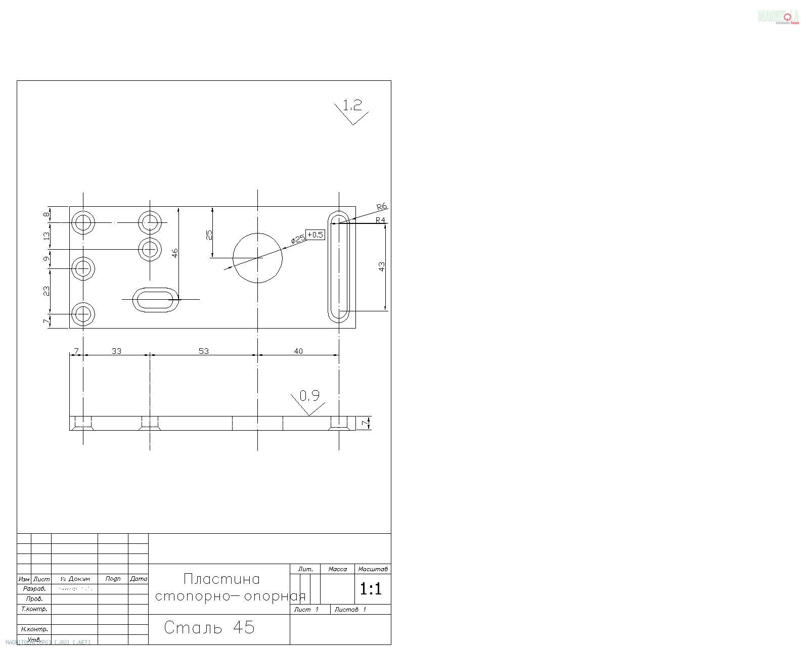
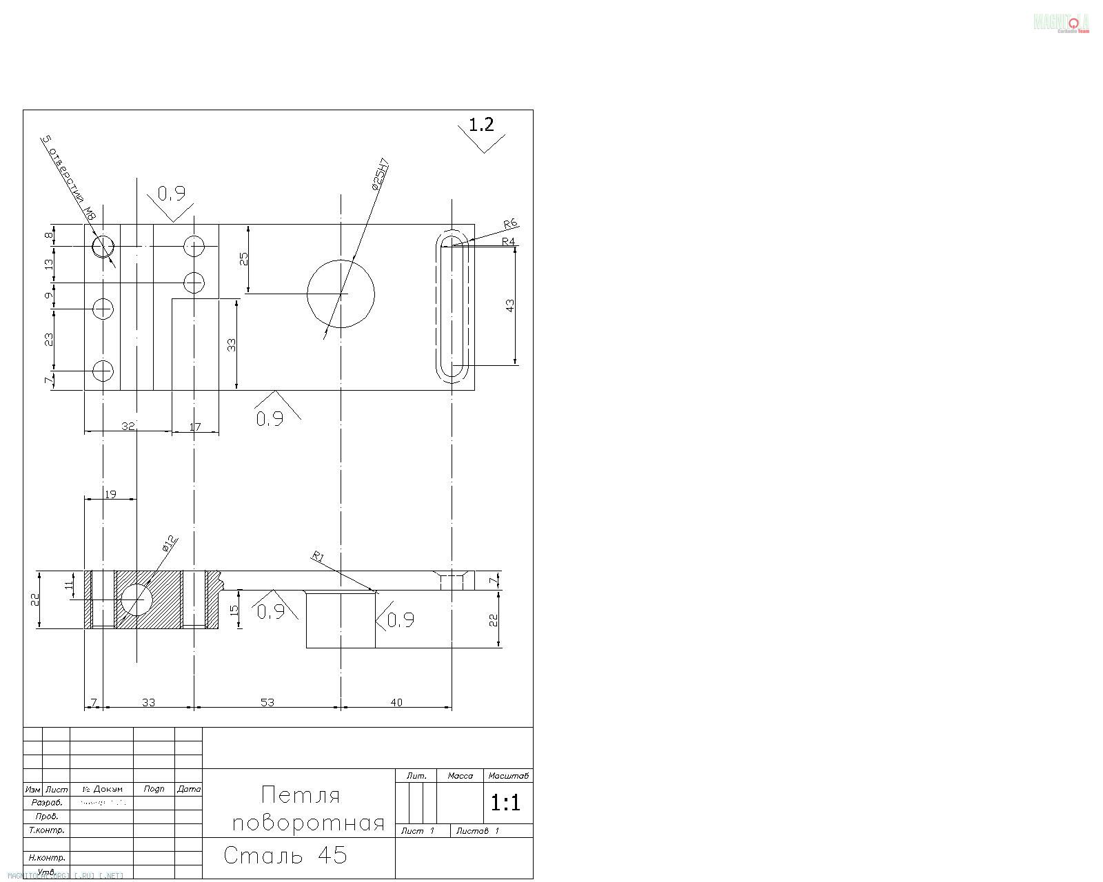
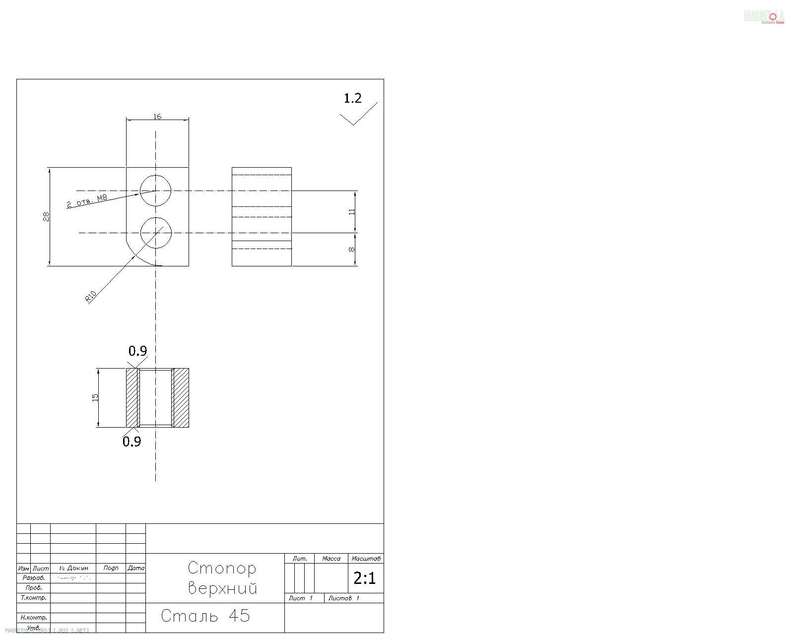
Чертежи ламбо механизмов универсальных можно скачать здесь во вложении.
В архиве два разных механизма,чертежи и видео как работают.
Вид для печати
Чертежи ламбо механизмов универсальных можно скачать здесь во вложении.
В архиве два разных механизма,чертежи и видео как работают.